ТЕМП TFA5500-3D380 Подъёмник электрогидравлический четырехстоечный, 5,5 т

Артикул: TFA5500-3D380

Розничная цена: 451706 руб.

Артикул:  TFA5500-3D380
Кол-во:  

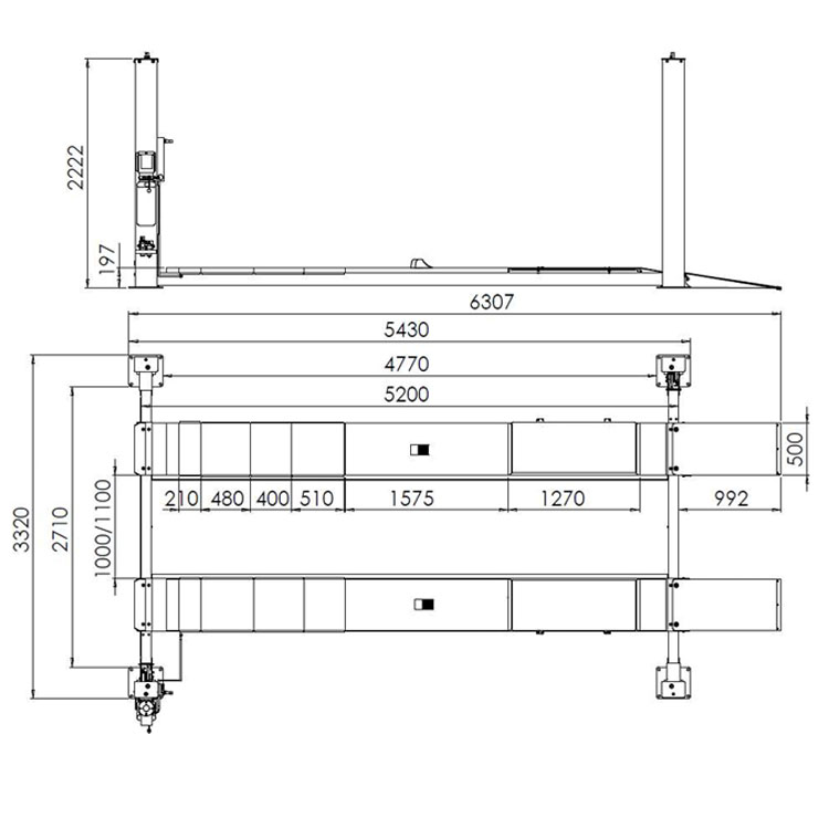
Классический четырехстоечный подъемник для выполнения общеслесарных работ и услуг развал-схождения колес. Увеличенное расстояние между колоннами позволяет работать со стендами любого производителя.

Данный подъемник оснащен одним качественным гидравлическим цилиндром и 4мя тросами, изготовленными по соверменным технологиям.

Особенности подъёмника ТЕМП TFA 5500

  • Увеличена длина трапов, что позволяет работать с микроавтобусами с увеличенной межколесной базой (MB Sprinter, Peugeot; Citroen, Ford, Fiat и т.д.);
  • Увеличена грузоподъемность;
  • Подъемник оборудован системой защиты гидравлического давления и предохранительного клапана, поэтому, в случае какой либо неисправности или разрыва троса, подъемник не упадет;
  • Пневматическое управление стопорами;
  • Снятие со стопоров одним рычагом;
  • Встроенные подвижные задние пластины и выемки под передние поворотные круги.